Step 1
Works with Any Sketch
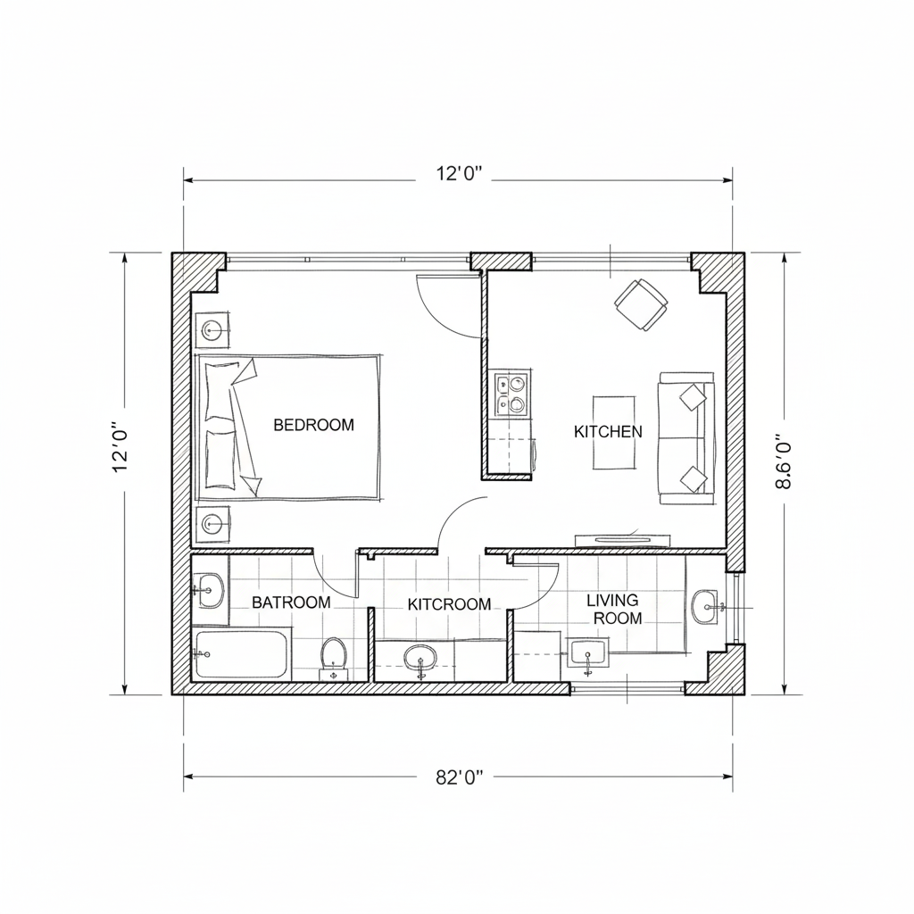
Ready to see transform your sketch into professional floor plan in action? Use our precision-tuned AI workbench below.
Upload a hand-drawn sketch and turn it into a cleaner, more readable architectural floor plan.
Floor Plan from Sketch
Upload a sketch to convert it into a polished floor plan.
From concept to construction, VitruviAI handles the heavy lifting of spatial reasoning.
Works with Any Sketch

Generated with VitruviAI

Generated with VitruviAI

Generated with VitruviAI

Generated with VitruviAI

Generated with VitruviAI

Generated with VitruviAI

Generated with VitruviAI

Generated with VitruviAI
Every detail managed by our specialized neural architectures.
Take a photo of your hand-drawn sketch or upload a digital draft
Our AI analyzes your sketch and converts it to a professional format
Get your professional floor plan and make further edits if needed
Everything you need to know about our transform your sketch into professional floor plan technology.
You can upload hand-drawn sketches on paper (photographed), digital sketches, rough drafts, or even napkin drawings. The AI sketch to floor plan tool works best with clear, dark lines on a light background, but can handle various quality levels.
Join the community of forward-thinking designers using VitruviAI to redefine the boundaries of spatial design.